
Koraalzwam 15
- 120 m2
- 1998
- 4
- A
Ben jij op zoek naar een ruime gezinswoning in het Petenbos met fijne tuin en veranda? Dan is deze tussenwoning aan de Koraalzwam precies wat je zoekt! De woning (bouwjaar…
Ben jij op zoek naar een ruime gezinswoning in het Petenbos met fijne tuin en veranda? Dan is deze tussenwoning aan de Koraalzwam precies wat je zoekt!
De woning (bouwjaar 1998) heeft een woonoppervlakte van ca. 118 m² en een perceel van 179m². Met een lichte woonkamer, af te sluiten eetkamer en 4 comfortabele slaapkamers biedt dit huis alles wat je nodig hebt.
De wijk ‘Petenbos’ is een rustige kindvriendelijke buurt die erg geliefd is door het vele groen door de gehele wijk. In de omgeving zijn diverse voorzieningen te vinden zoals speelveldjes, (basis)scholen en een wijkwinkelcentrum met een supermarkt. Toch wat meer boodschappen nodig? Dan ligt het centrum van Veenendaal op enkele minuten fietsen. De uitvalswegen naar de A12 en A30 zijn ook binnen enkele minuten te bereiken net als NS-station Veenendaal-Centrum. Tenslotte vind je op korte afstand de uitgestrekte bossen van de Utrechtse Heuvelrug waar je heerlijk kunt wandelen, fietsen of mountainbiken.
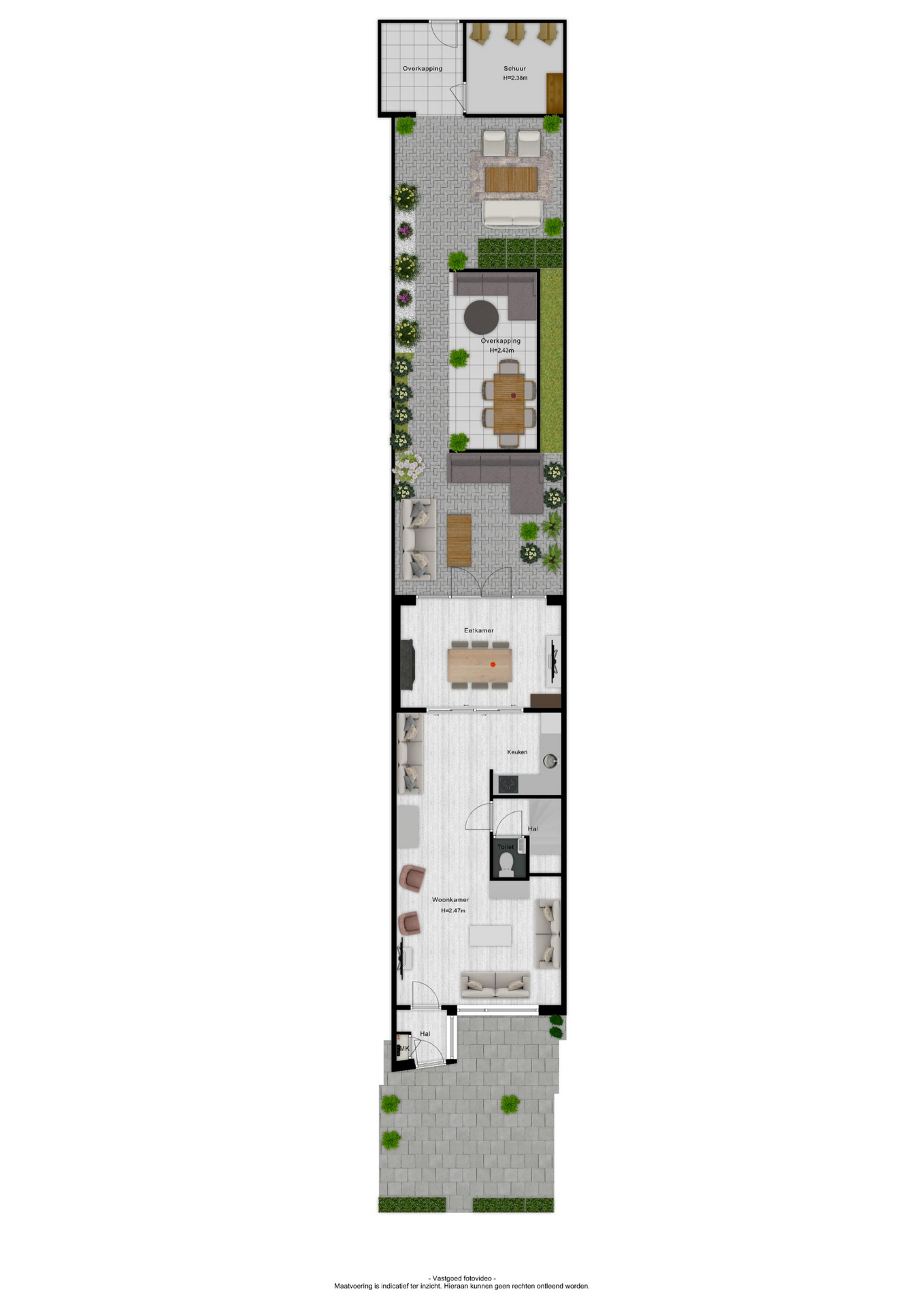
Indeling
Begane grond:
Via de goed verzorgde voortuin kom je bij de entree van de woning. Je komt de woning binnen in de hal met de meterkast en de toegangsdeur naar de living. Zodra je door de toegangsdeur loopt, kom je in de zithoek. Hier is ruimte voor een grote loungebank en vanaf hier kijken je door de raampartijen ook lekker uit op de straat. Dit raam is voorzien van een rolluik zodat je hier in de zomermaanden ook fijn kunt zitten met een aangename temperatuur. In de zithoek vind je ook nog een toegangsdeur naar de praktische trapkast.
Centraal in de woonkamer bevinden zich de doorgangen naar de volledig betegelde toiletruimte met fonteintje en de vaste trapopgang naar de verdieping. Daarnaast is de keuken ook centraal gelegen op de begane grond. Deze eigentijdse keuken is voorzien van 4-pits inductiekookplaat, afzuigkap, combi-oven en een koelkast.
Als je verder doorloopt naar de achterzijde kom je middels de schuifdeuren in het eetgedeelte. Hier kan je heerlijk genieten van jouw net gekookte maaltijd of gezellig borrelen met vrienden of familie. Door de openslaande deuren krijgt deze ruimte nog meer sfeer en staat deze in verbinding met de tuin.
De gehele begane grond is voorzien van een plavuizenvloer.
Eerste verdieping:
Middels de vaste trap bereik je de overloop met toegang tot twee slaapkamers, de badkamer en een tweede, apart toilet. De masterbedroom aan de voorzijde is erg ruim en heeft voldoende plek voor een grote kledingkast en een kingsize bed. Deze kamer heeft ook genoeg daglicht. Aan de achterzijde is de tweede slaapkamer te vinden. Deze is ook erg ruim.
De badkamer, gelegen aan de achterzijde van de woning, is volledig betegeld en keurig afgewerkt. Hier vind je een wastafel en een comfortabele bad-/douchecombinatie, ideaal voor zowel een snelle douche in de ochtend als een ontspannend bad aan het einde van de dag. Het aanwezige raam zorgt voor een prettige lichtinval en natuurlijke ventilatie, waardoor de ruimte altijd fris en aangenaam aanvoelt.
Tweede verdieping:
De tweede verdieping is met een vaste trap te bereiken en biedt verrassend veel mogelijkheden. Vanaf de ruime overloop kom je in twee afzonderlijke kamers. Beide kamers zijn lekker ruim, hebben een fijne lichtinval en zijn daardoor heel geschikt als slaapkamer, werkkamer of hobbyruimte. Op de overloop vind je daarnaast de aansluitingen voor de wasmachine en droger én de opstelplaats van de cv-ketel. Zo combineert deze verdieping praktisch gemak met volop leefruimte
De tuin:
Vanuit de eethoek en via de achterom bereik je de netjes aangelegde, op het noordoosten gelegen tuin. De tuin biedt meerdere plekken om een heelrijk zithoek te creëren. Met het elektrische zonnescherm zorg je dat je op warme dagen ook in de tuin kunt genieten van het buitenleven. Onder de veranda zit je beschut en comfortabel, waardoor je er zowel in de zomer als in de winter een fijne plek hebt om te ontspannen.
Bijzonderheden:
– 4 slaapkamers;
– Functionele keuken;
– Elektrische rolluiken (begane grond en eerste verdieping) en elektrisch zonnescherm achterzijde;
– Ruime tuin met veranda en berging;
– Energielabel A;
– Nabij alle voorzieningen gelegen.
Interesse?
Bel ons voor het maken van een bezichtigingsafspraak!
Aan onvolkomenheden in de vermelde gegevens, tekeningen en schaal kunnen geen aanspraken worden ontleend. De vermelde informatie is van algemene aard en is niet meer dan een vrijblijvende uitnodiging om in onderhandeling te treden.

Kenmerken
- Status Beschikbaar
- Vraagprijs € 525.000,- k.k.
- Aanvaarding In overleg
- Soort woonhuis Eengezinswoning
- Type woonhuis Tussenwoning
- Soort bouw Bestaande bouw
- Bouwjaar 1998
- Soort dak Zadeldak
- Onderhoud binnen Goed tot uitstekend
- Onderhoud buiten Goed tot uitstekend
- Gebruiksoppervlakte wonen ca. 120 m2
- Externe bergruimte ca. 8 m2
- Inhoud ca. 401 m3
- Perceeloppervlakte ca. 179 m2
- Aantal kamers 5
- Aantal slaapkamers 4
- Aantal badkamers 1
- Badkamer voorzieningen Ligbad, douche, wastafel
- Aantal woonlagen 3 woonlagen
- Energielabel A
- Isolatie Volledig geisoleerd
- Verwarming Cv ketel
- Warm water Cv ketel
- C.v.-ketel type Gas
- C.v.-ketel bouwjaar 2016
- Eigendom Eigendom
- Ligging Aan rustige weg, in woonwijk
- Hoofdtuin Achtertuin
- Oppervlakte hoofdtuin ca. 70 m2
- Ligging hoofdtuin Noordoost
- Achterom Ja
- Kwaliteit tuin Verzorgd
- Schuur / berging Vrijstaand hout
- Aantal schuren / bergingen 1
- Voorzieningen Voorzien van elektra
- Parkeerfaciliteiten Openbaar parkeren
- Garage Geen garage
In de buurt
Voorzieningen