Amber van de Weerd Assistent Register Makelaar Taxateur (ARMT)
Terug naar overzicht

Markt 6

3901 DM Veenendaal
  • 1906
  • D
  • Horeca

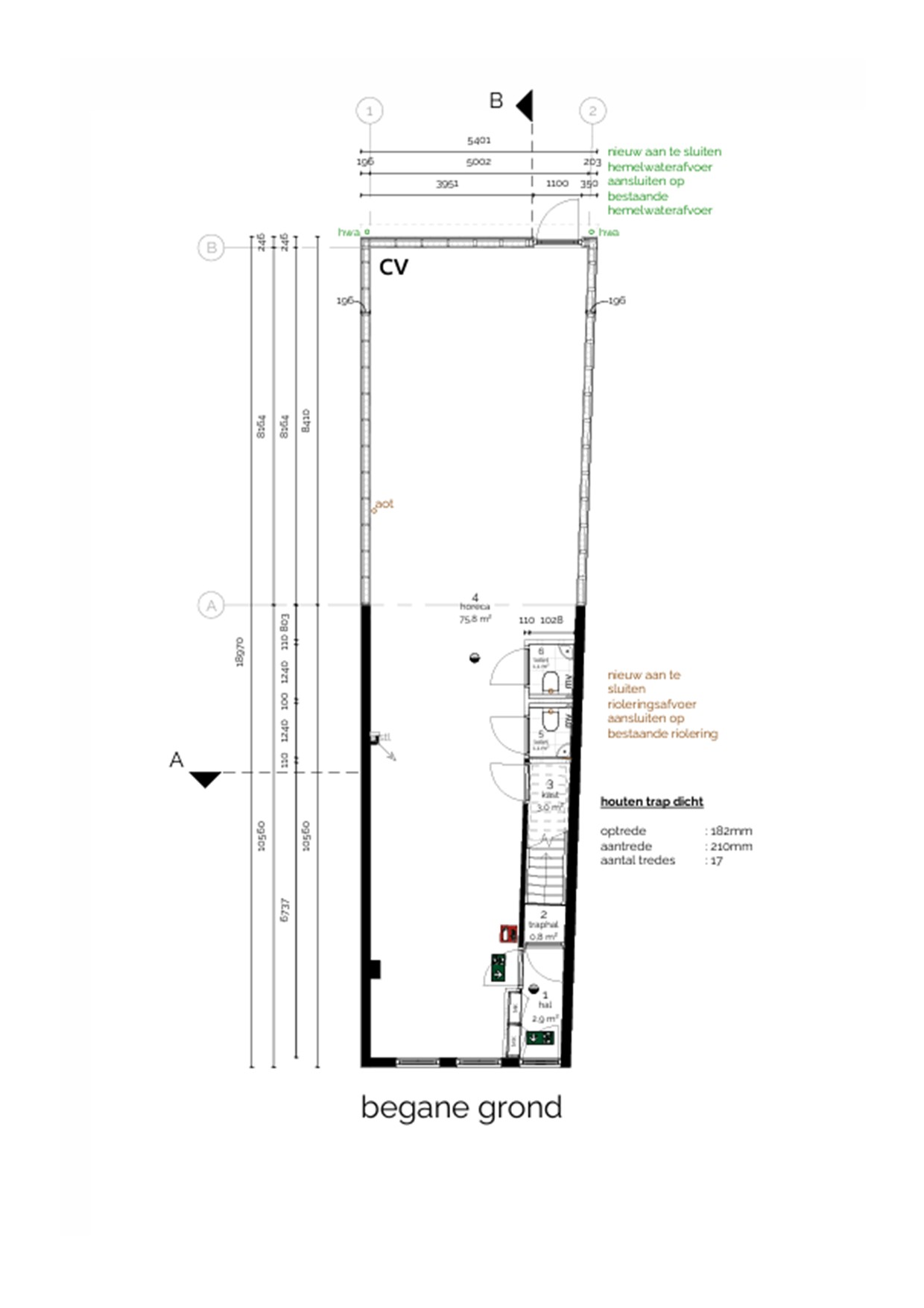
In het hart van het centrum van Veenendaal is deze representatieve horecaruimte van circa 76 m² gelegen. Het object is gelegen aan de Markt, midden in het levendige centrum van…

€ 2.000, - p/m
Scroll verder
Omschrijving

In het hart van het centrum van Veenendaal is deze representatieve horecaruimte van circa 76 m² gelegen. Het object is gelegen aan de Markt, midden in het levendige centrum van Veenendaal en daarmee op een uitstekende locatie met veel passanten.

In de directe omgeving bevinden zich diverse winkels, horecagelegenheden en landelijke ketens, waardoor het gebied dagelijks veel bezoekers trekt. Het centrum van Veenendaal staat bekend om zijn brede winkelaanbod, gezellige horeca en goede bereikbaarheid, wat het een aantrekkelijke bestemming maakt voor zowel inwoners als bezoekers uit de regio.

De ruimte is recent volledig verbouwd en wordt casco opgeleverd, waardoor jij als huurder de mogelijkheid hebt het geheel naar eigen wens en concept in te richten. Het object beschikt daarnaast over twee aparte toiletruimtes.

Vloeroppervlakte
De totale verhuurbare vloeroppervlakte bedraagt circa 76 m², gelegen op de begane grond.

Energielabel
D.

Voorzieningen
Het object wordt casco opgeleverd. De ruimte is recent volledig gerenoveerd en biedt daardoor een uitstekende basis voor horeca. Het object zal worden opgeleverd in de huidige staat.

Parkeren
In de directe omgeving zijn diverse openbare parkeervoorzieningen aanwezig, waaronder parkeergarages en parkeerterreinen.

Huurprijs
€ 2.000,- exclusief BTW.

BTW
Het uitgangspunt is BTW belaste verhuur. Indien huurder de BTW niet kan verrekenen dan zal de huurprijs met een nader vast te stellen bedrag worden verhoogd.

Huurprijsaanpassing
Jaarlijks, op basis van de wijziging van het maandprijs-indexcijfer volgens de consumentenprijsindex (CPI) reeks CPI-Alle Huishoudens (2006 = 100), gepubliceerd door het Centraal Bureau voor de Statistiek (CBS).

Servicekosten
Uitgangspunt is dat huurder voor eigen rekening en risico contractant wordt bij de openbare nutsbedrijven.

Huurtermijn
In overleg.

Opzegtermijn
In overleg.

Zekerheidsstelling
Afhankelijk van de financiële gegoedheid van de kandidaat een bankgarantie of waarborgsom ter grootte van minimaal drie (3) maanden huur, inclusief BTW.

Betaling
Huurpenningen en BTW per maand vooruit.

Aanvaarding
In overleg.

Overige condities
Huurovereenkomst op basis van het meest recente standaardmodel van de Raad voor Onroerende Zaken (ROZ).

Aan onvolkomenheden in de vermelde gegevens, tekeningen en schaal kunnen geen aanspraken worden ontleend. De vermelde informatie is van algemene aard en is niet meer dan een vrijblijvende uitnodiging om in onderhandeling te treden.

Lees meer

Download de brochure

Bekijk in alle gemak de brochure van deze woning.

Gratis download
Specificaties

Kenmerken

  • Status Beschikbaar
  • Huurprijs € 2.000 p/m Excl btw
  • Aanvaarding In overleg
  • Servicekosten -
  • BTW van toepassing Ja
  • Aanvaarding In overleg
  • Hoofdfunctie Horeca
  • Soort bouw Bestaande bouw
  • Bouwjaar 1906
  • Energielabel D
  • Onderhoud binnen Goed
  • Onderhoud buiten Goed
Voorzieningen

In de buurt

Voorzieningen

      DOWNLOADS

      Documenten

      Bezichtiging aanvragen (Bedrijven)

      Laat je gegevens achter en wij nemen contact met je op.

      DD slash MM slash JJJJ
      Toestemming(Vereist)